Gu-gi dong .Apt
Location:Jongno-gu Seoul ,Photographs:lim Heeyeon





















오래된 연립주택을 고치는 일은 5년만의 일이다. 계약하고 일을 시작하기 전에 몇 번의 상담 과정을 거쳤다. 상담 중에 그녀가 오랜 기간 집에 대한 꿈을 키워온 과정 그리고 고심 끝에 우리를 찾아낸 과정에 대해 이야기 하였다. 그녀는 나무들 속에 있는 빨간벽돌집을 꿈꾸었고 정말로 그러한 집을 찾게 되었다. 나도 별 생각 없이 내가 해왔던 프로젝트를 설명 하다가 프로젝트를 선택할 때 사용자를 유심히 살피는 과정을 거친다고 이야기 하였다. (실로 집을 짓는 과정은 장기적으로 서로 많은 영향을 주는 일이다, 그리고 내 관점에서 벗어나 생각하는 일은 거의 잘 일어나지 않는다) 어렵게 찾아온 그녀가 ‘면접을 보는 것인가요?’라고 당황해 하셨던 기억이 난다.
집을 짓는 과정에서 사용자(집 주인)는 분명하게도 집의 최초 기획자 이자 그것을 완성하는 배우이다. 특히나 이집의 완성을 보고 더욱 그런 생각이 들었다. 우리는 어떠한 일의 시작과 끝을 온전하게 볼 수 없다. 음식이 식탁 위에 올라오는 과정을 생각해보면 그 앞부분(재료들이 자라나는 시간)은 우리의 시야에서 벗어나 있고 이미 내 손에 주어진 재료들로 부터 우리의 인식이 시작된다. 집이 완성될 때에는 완성물이 만족스럽든 그렇지 않던 아마도 다른 여러 변수와 함께 ‘나’라는 변수(나의 결함과 실수를 포함한)를 만나서 그렇게 만들어진다.
이 오래된(약40년)연립주택의 첫 번째 매력은 계곡이 보이는 산속의 나무들 사이에 자리 잡은 건물의 위치에 있다. 서울의 도심 속에도 산과의 경계에는 이런 아름다운 공간들이 숨어 있다. 두 번째 매력은 ㄱ자 ㄴ자의 두개의 건물(동)이 마주보고 앉아서 만든 아늑한 중정에 있다. (재건축이 이루어진다면 예쁜 새들이 함께하는 중정이 많이 그리울 것이다) 마지막으로 해당 호실로 올라오면 나무들과 계곡을 내려다 볼 수 있는 전망이 있다. 나무들은 계절의 변화를 함께 견디는 좋은 친구들이 된다. 이곳에 올라오면 도시의 소음은 없어지고 이웃 절에서 울리는 목탁소리가 멀리서 들린다.
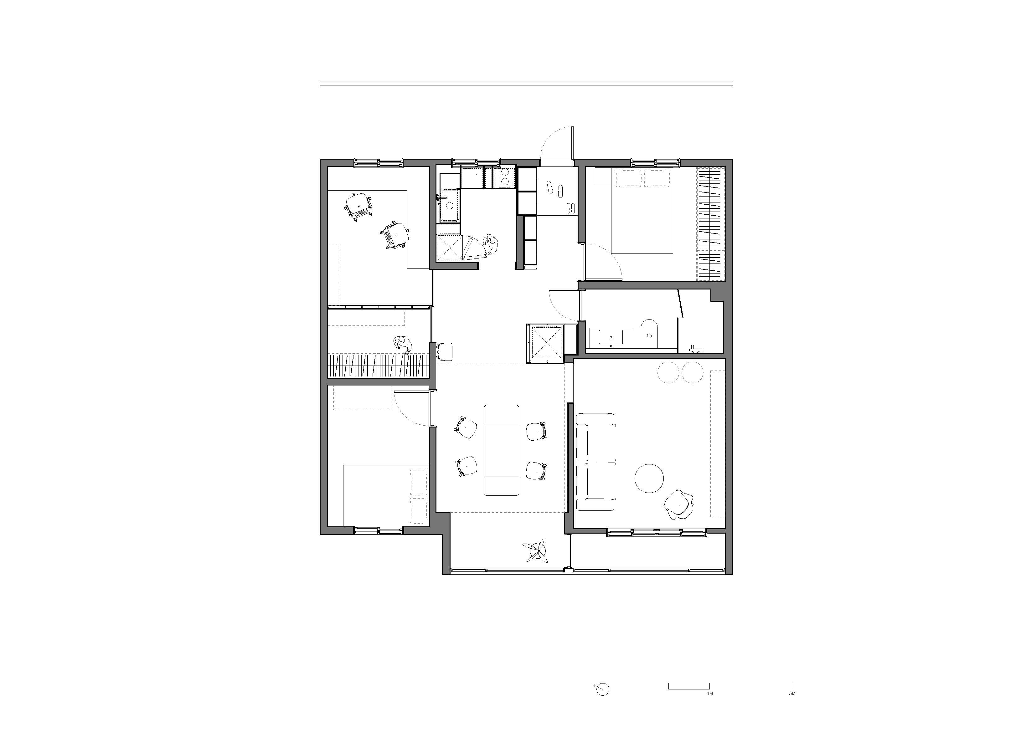
기존 평면 구조는 매우 정직한 복도식 3BAY(호실의 28평 남짓한 면적을 내력벽체에 의해 3열로 분할된) 구성이었다. 복도에서 현관문을 열면 깊숙하게 거실 끝까지 들여다보였다. 거실의 전망은 매력적 이었지만 거실이 다소 통로 공간처럼 느껴지는 것이 아쉬웠다. 현관의 바로 오른편에는 복도에 면한 작은방에는 옷들과 함께 작은 짐들이 채워져서 창고처럼 사용되고 있었다. 중정(복도)방향으로 창이 열리지 않아 답답하게 느껴졌다.
벽식 구조 건물이었기에 벽체를 철거하여 구성을 바꿀 수는 없었다. 구조체를 유지한 상태로 공간들의 기능을 바꾸기로 하였다. 기존에 소파가 놓인 거실공간은 2.2m 길이의 테이블(소파보다 높은 자세로 앉기 때문에 좀 더 공적인 느낌을 가진다)이 놓여 응접실 겸 식사공간이 되었다. 현관 옆의 작은방(창고로 사용되던)은 문틀이 제거된 작은 주방이 되었다. 중정의 나무가 보이는 작은 주방은 응접실 공간까지 직선적인 연결성을 가지게 되었다. 기존에 주방이었던 공간은 두 짝의 미닫이도어와 칸막이벽의 설치로 직업적으로 글을 쓰는 두 명의 작업공간과 작은 드레스룸이 되었다. 마지막에 사용자(집주인)와 결정한 세탁/건조기 세트의 위치가 화장실 앞(기존에는 세탁기가 화장실 내부에 있었다)으로 정해지면서 응접실 공간의 성격이 완성되었다. 모든 공간에서 중심인 응접실 공간을 현관문에서 직접적으로 보이지 않게 가려주고 큰 기둥과 같이 만들어진 세탁기장 가구를 경계로 응접실 천장을 15센티미터 정도 높여서 단계적인 영역성을 만들 수 있었다. 응접실 옆에 안방으로 쓰이던 공간은 문틀과 날개벽 10센티미터가 제거되어 응접실과 벽을 사이로 열려있지만 조금 더 내밀한 거실공간이 되었다.